Zinal 104

Wohnung 4 sleeps - Thyon

neu
Diashow (13 photo_camera)
Description
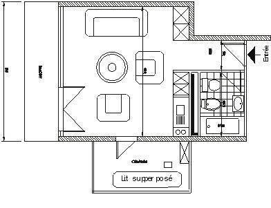
Layout
Eigenschaften
Localisation
Startseite Nos locations de vacances >

Ferienwohnungen wohnung 4 personnes 41 m² Thyon 1988

Descriptif de l'appartement

2-Zimmer-Wohnung (Typ H) für 4 Personen im 3. Stock des Gebäudes Zinal (Eingang B) in Thyon 2000. sie verfügt über eine offene Küche: 4 Glaskeramikkochfelder, Mikrowelle, Backofen, Kühlschrank mit kleinem Gefrierfach. Das Wohnzimmer, mit TV, DVD und WIFI, besteht aus einem Sitzbereich (1 Doppelschlafsofa 2.00 X 1.80) und einer Essecke. Kinderzimmer mit einem Stockbett (2.00 X 1.00). Badezimmer: WC, Waschbecken und Badewanne. Balkon in Richtung Osten mit Aussicht auf das Val d'Hérens. Wohnung OHNE Teppichboden. Tiere nicht erlaubt.

Parkplatz verfügbar in Tiefgarage gegen Gebühr.



Hinsichtlich Thyon 2000

Der Ferienort von Thyon 2000 liegt auf 2100ü.M., direkt im Skigebiet der 4 Vallées und stellt Ihnen eine Qualitätsinfrastruktur wie z.B. Hallenbad, Sauna, Kinderhütedienst, Arzt, Geschäfte, usw., zur Verfügung ohne das Auto zu benutzen. Im Winter können Sie unter anderem von einem Skigebiet mit mehr als 400km Skipisten profitieren, aber auch von Schneeschuh Wanderungen, Langlaufloipen und verschiedenen Animationen. Im Sommer lassen Sie sich von tollen Spaziergängen, Mountainbike Touren, Besichtigung vom Stausee Grande Dixence oder einen Ausflug zur Ranch bezaubern. Das Ganze natürlich mit maximaler Sonneneinstrahlung und wunderschönem Panorama. Wir freuen uns, Sie in Thyon 2000 zu begrüßen!



  • - Télévision
  • - DVD
  • - Sauna
  • - Accès internet
  • - Radio
  • - Table à manger
  • - Dressing
  • - Micro-ondes
  • - Frigo
  • - Four
  • - Téléphone

Eigenschaften

Wohnfläche : 41 m²

Anzahl der zimmer : 2

Anzahl der schlafzimmer : 1

Anzahl der badezimmer : 1

Parkplatz : Nein.

Balkon : Nein.

Anzahl der terrasse : Nein.

Aufzug : ja

Schwimmbad : ja

Belichtung : Sud-Est

Umwelt & Lage

Diese Vermietung interessiert Sie?

Hinterlassen Sie uns eine Nachricht

Deine Wünsche

Ihre verfügbarkeit

Wenn Sie Nein ankreuzen, geben Sie an, dass Sie keinen Newsletter über Immobiliennachrichten, Angebote und Produkte von erhalten möchten Imalp

Wenn Sie auf Senden klicken, stimmen Sie zu, Informationen zu der oben dargestellten Immobilie und ähnlichen Angeboten zu erhalten, die Sie interessieren könnten

senden
*Felder mit einem Sternchen (*) erforderlich sind. Recueil de vos informations personnelles afin de pouvoir gérer la relation client et apporter conseils et informations complémentaires au niveau de la marque Imalp et le cas échéant au niveau des partenaires et prestataires. Les données transmises via ce formulaire sont destinées uniquement au personnel de Imalp et sont conservées pour une durée n’excédant pas celle nécessaire à la réalisation des finalités précitées.
Conformément au Règlement européen n°2016/679/UE du 27 avril 2016 sur la protection des données personnelles et à la loi « informatique et libertés » du 6 janvier 1978 modifiée, vous disposez d'un droit d'interrogation d'accès, de rectification, d’effacement, de portabilité et de limitation du traitement des données vous concernant ainsi que du droit de communiquer des directives sur le sort de vos données après votre mort. Vous avez également la possibilité de vous opposer au traitement des données vous concernant pour motifs légitimes. Vous pouvez exercer ce droit par courrier électronique adressé à : info@imalp.ch, ou par courrier à Imalp - Route de Thyon 12 - 1988 - Thyon, accompagné d'une copie d'un titre d'identité. Pour plus d'informations consulter nos Legals.

ähnliche Objekte

Dixence 209
Wohnung 4 sleeps
Thyon 1988

Ab 608 CHF wöchentlich

Ihre Ferien in Thyon 2000! Dixence 209

Ref : Dixence 209

Wildhorn 125
Wohnung 4 sleeps
Thyon 1988

Ab 681 CHF wöchentlich

Ihre Ferien in Thyon 2000! Wildhorn 125

Ref : Wildhorn 125

Zinal 204
Wohnung 4 sleeps
Thyon 1988

Ab 641 CHF wöchentlich

Ihre Ferien in Thyon 2000! Zinal 204

Ref : Zinal 204

G Buche online } Favoriten b Benachrichtigungsmail Praxis 6 Wettervorhersage à Webcam Facebook Instagram
%}